hero-image-0
hero-image-1

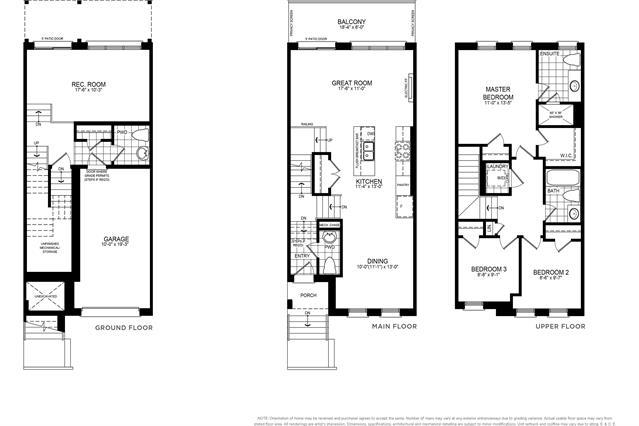
Cordova TH-1C Plan

By

Treasure Hill

   |   

The Arthur

The Arthur
Sold
Sold
3
2
1
From 1,707
unit-banner-imageunit-banner-imageunit-banner-image
Cordova TH-1C Plan details
Cordova TH-1C Plan is now sold.
Check out available nearby plans below.