hero-image-0
hero-image-1

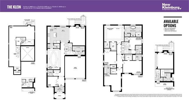
The Klein Plan

By

DECO Homes

   |   

New Kleinburg

New Kleinburg
Sold
Sold
4
3
1
From 3,460
unit-banner-imageunit-banner-imageunit-banner-image
The Klein Plan details
The Klein Plan is now sold.
Check out available nearby plans below.