hero-image-0
hero-image-1
hero-image-2
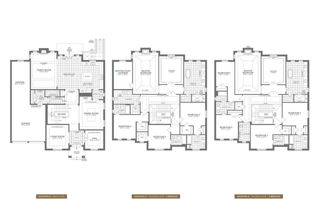
McMichael Estates
Sold
Sold
4
3
From 4,559
unit-banner-imageunit-banner-imageunit-banner-image
Fitzgerald Plan details
Fitzgerald Plan is now sold.
Check out available nearby plans below.