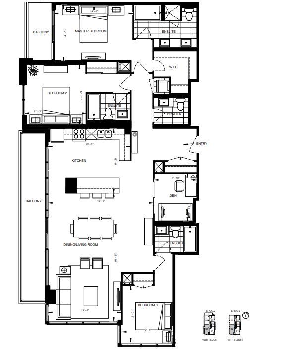
3A
Wilson West
Oakdale-Beverley Heights, Toronto
E1050 BF
Rise & Rose - Burnet Tower
Westbrook, Richmond Hill
E1015
Milan Luxury A
Privilla
Clanton Park, Toronto
3B
6080 Yonge
Newtonbrook West, Toronto
Milan Luxury B
Milan Luxury C
E1145