hero-image-0

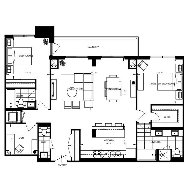
2BD-H Plan

D'or Condos
Sold
Sold
2
2
1
1
From 1,361
unit-banner-imageunit-banner-imageunit-banner-image
2BD-H Plan details
2BD-H Plan is now sold.
Check out available nearby plans below.