hero-image-0

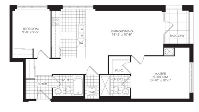
Zurich Plan

Courtyards of Maple
Sold
Sold
2
From 882
unit-banner-imageunit-banner-imageunit-banner-image
Zurich Plan details
Zurich Plan is now sold.
Check out available nearby plans below.