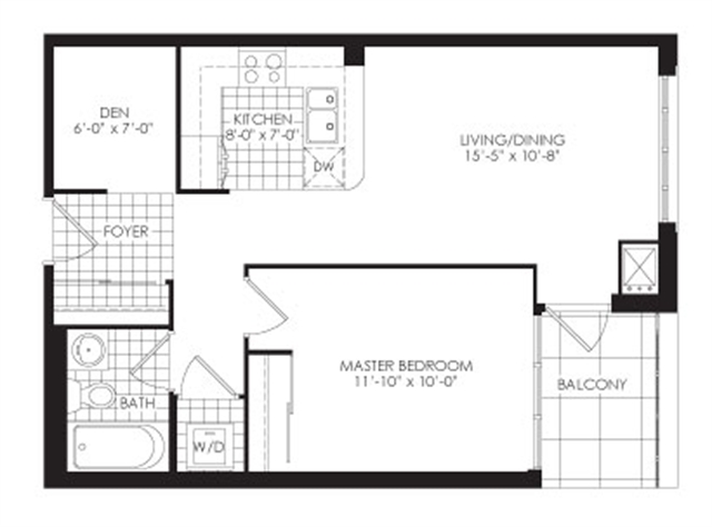
B633
Rise & Rose - Burnet Tower
Westbrook, Richmond Hill
B639 BF
Bangalore 572
Encore at Bravo
Vaughan Corporate Centre, Vaughan
Kyoto 585
New Orleans 470
Bangalore 548
Saffron
CG Tower
Concord, Vaughan
New Orleans 480