













































Get additional information including price lists and floor plans.
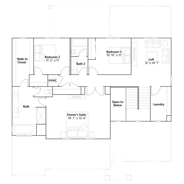
This new four-bedroom home boasts a modern and spacious design. Off the foyer is a convenient den, leading to an open-concept floorplan shared between the kitchen, dining room and Great Room. A bedroom and full bathroom are tucked away to the side of the home for enhanced privacy on the first level. A versatile loft shares the second floor with three additional bedrooms, including the luxurious owners suite, featuring a private space at the front of the home.
Stay informed with Livabl updates on new community details and available inventory.