









































Get additional information including price lists and floor plans.
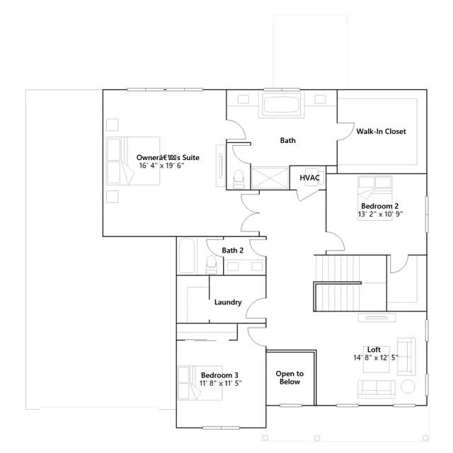
With attractive features such as a den and upstairs loft, this new two-story home is designed for modern lifestyles. An open-concept layout on the first floor boasts access to an outdoor patio, perfect for seamless entertaining and multitasking, with a bedroom and den located off the foyer. The versatile loft shares the second floor with three additional bedrooms, including the lavish owners suite with a spa-inspired bathroom and walk-in closet.
Stay informed with Livabl updates on new community details and available inventory.