hero-image-0

2 Plan

By

Concord Pacific

   |   

Uptown

Uptown
Sold
Sold
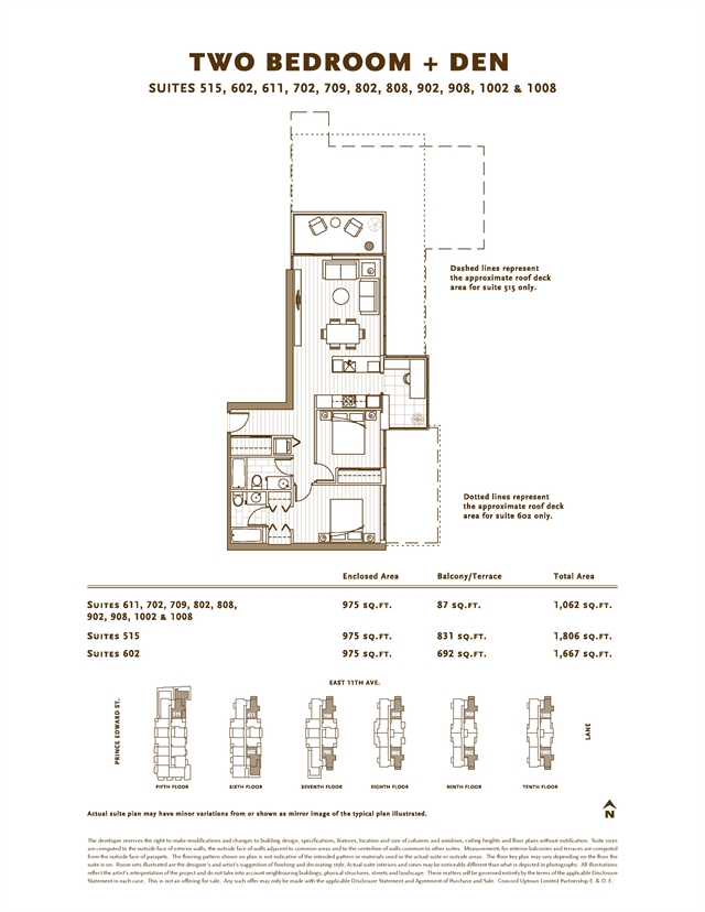
2
From 1,062
unit-banner-imageunit-banner-imageunit-banner-image
2 Plan details
2 Plan is now sold.
Check out available nearby plans below.