hero-image-0
The Village on False Creek
Sold
Sold
1
1
From 806
unit-banner-imageunit-banner-imageunit-banner-image
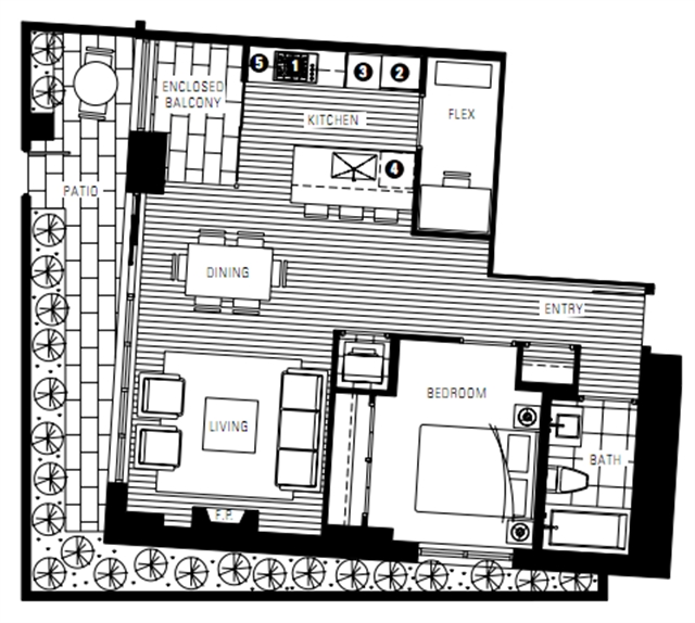
Plan K details
Plan K is now sold.
Check out available nearby plans below.