hero-image-0
The Village on False Creek
Sold
Sold
unit-banner-imageunit-banner-imageunit-banner-image
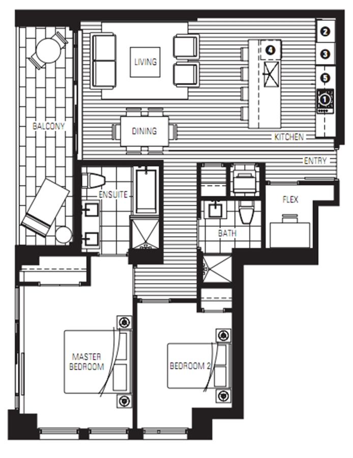
Plan B1 details
Plan B1 is now sold.
Check out available nearby plans below.