hero-image-0
The Residences at WEST
Sold
Sold
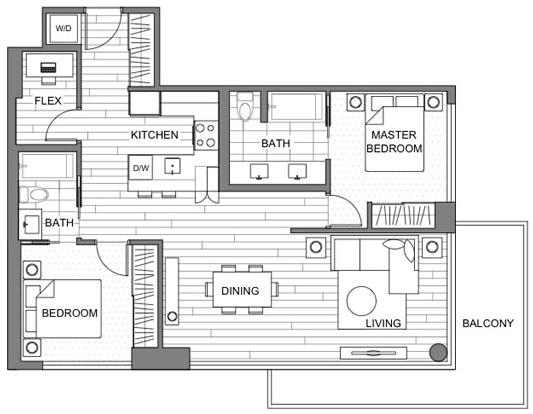
2
From 1,007
unit-banner-imageunit-banner-imageunit-banner-image
E1 Plan details
E1 Plan is now sold.
Check out available nearby plans below.