hero-image-0
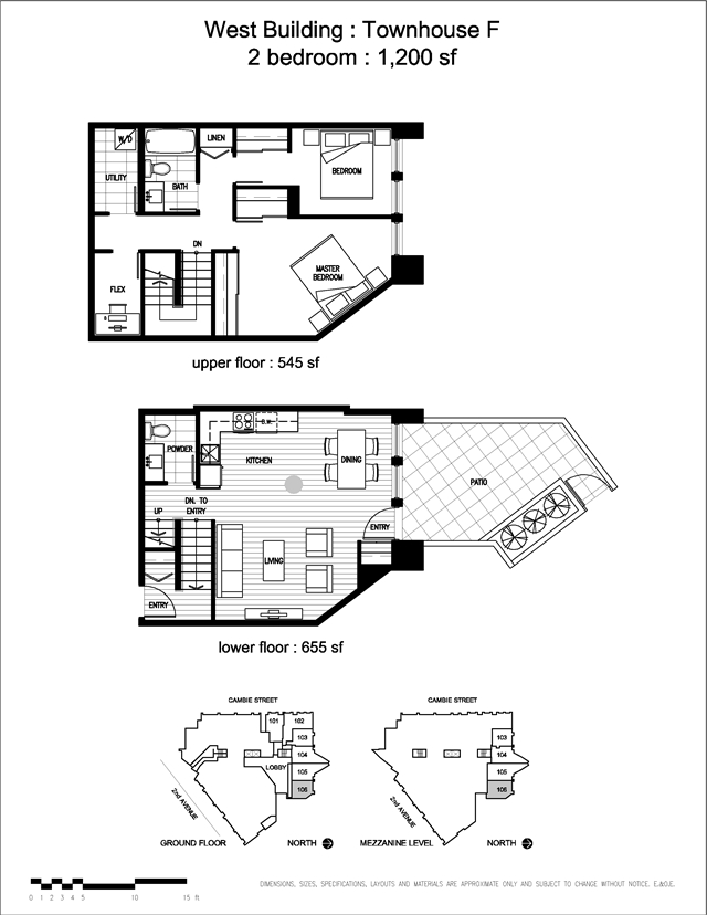
The Maynards Block
Sold
Sold
2
1
1
From 1,200
unit-banner-imageunit-banner-imageunit-banner-image
TH F Plan details
TH F Plan is now sold.
Check out available nearby plans below.