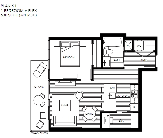
FEATURED
A4c
Ashleigh Oakridge
South Cambie, Vancouver
A2e
A
Talistar
Capstan Village, Richmond
A1a
Weston Place
Ambleside, West Vancouver
A1
m/6
Mt. Pleasant, Vancouver
A2
Ortus
Oak, Vancouver
Oasis at Concord Brentwood - East Tower
Dawson-Delta, Burnaby