hero-image-0
hero-image-1

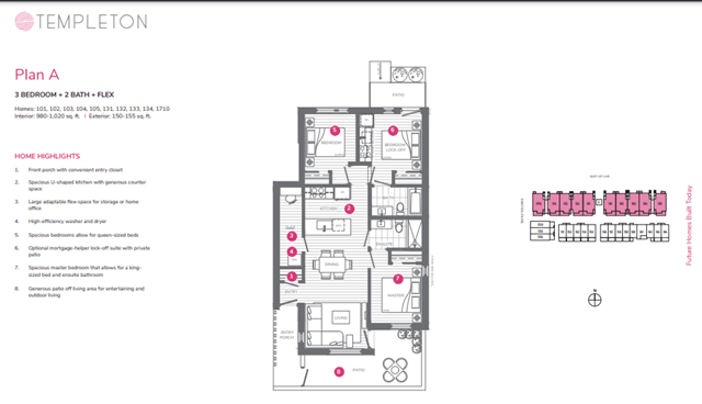
Plan A

By

Dimex Group

   |   

Templeton

Templeton
For sale
For sale
From $1,275,900
3
2
1
From 980
$1,302
Plan A details

Contact sales center

Get additional information including price lists and floor plans.

Interested? Receive updates

Stay informed with Livabl updates on new community details and available inventory.