hero-image-0

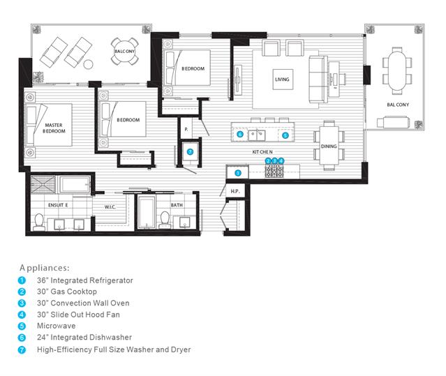
M Plan

By

Onni Group

   |   

Northwest

Northwest
Sold
Sold
3
2
From 1,135
unit-banner-imageunit-banner-imageunit-banner-image
M Plan details
M Plan is now sold.
Check out available nearby plans below.