hero-image-0

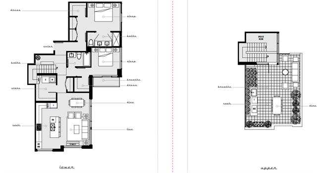
Twin Turbo Model G Plan

Meccanica by Cressey
Sold
Sold
2
2
From 1,316
unit-banner-imageunit-banner-imageunit-banner-image
Twin Turbo Model G Plan details
Twin Turbo Model G Plan is now sold.
Check out available nearby plans below.