hero-image-0

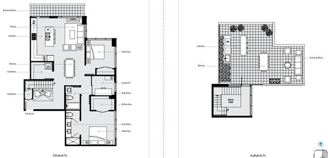
Twin Turbo Model E Plan

Meccanica by Cressey
Sold
Sold
2
2
1
From 1,401
unit-banner-imageunit-banner-imageunit-banner-image
Twin Turbo Model E Plan details
Twin Turbo Model E Plan is now sold.
Check out available nearby plans below.