hero-image-0

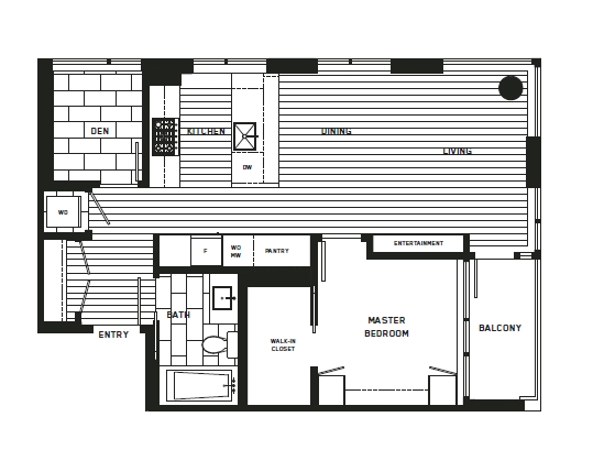
Plan D

By

Cressey

   |   

Maddox Downtown

Maddox Downtown
Sold
Sold
1
1
From 633
unit-banner-imageunit-banner-imageunit-banner-image
Plan D details
Plan D is now sold.
Check out available nearby plans below.