hero-image-0

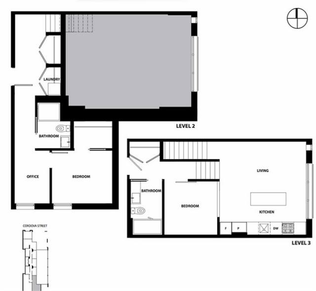
E Plan

By

PortLiving

   |   

InGastown

InGastown
Sold
Sold
2
From 928
unit-banner-imageunit-banner-imageunit-banner-image
E Plan details
E Plan is now sold.
Check out available nearby plans below.