hero-image-0

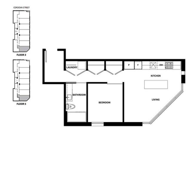
C2 Plan

By

PortLiving

   |   

InGastown

InGastown
Sold
Sold
1
From 501
unit-banner-imageunit-banner-imageunit-banner-image
C2 Plan details
C2 Plan is now sold.
Check out available nearby plans below.