hero-image-0

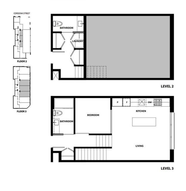
C1 Plan

By

PortLiving

   |   

InGastown

InGastown
Sold
Sold
1
From 630
unit-banner-imageunit-banner-imageunit-banner-image
C1 Plan details
C1 Plan is now sold.
Check out available nearby plans below.