A2
Wren
South Cambie, Vancouver
Rowen W47
Oakridge, Vancouver
B105
Willow Walk
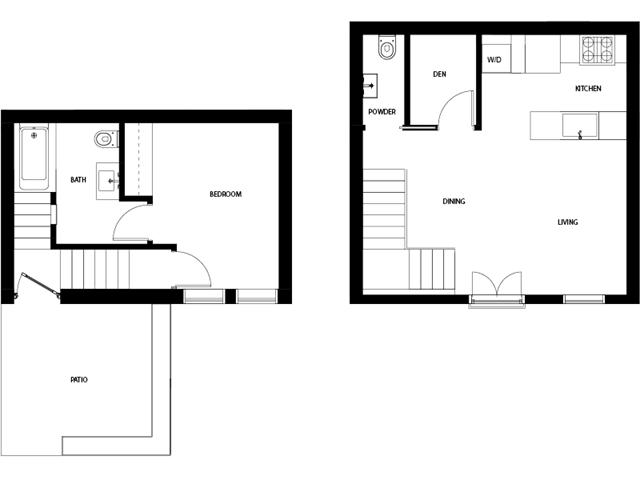
C5A
Whitford
Shaughnessy, Vancouver
B
King & Columbia (Phase 2)
Riley Park, Vancouver
C Plan
King & Columbia - Phase 1
A1
B1
Line House