hero-image-0

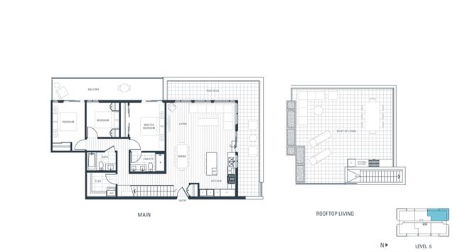
PH6 Plan

By

Boffo Properties

   |   

Eastpark

Eastpark
Sold
Sold
2
2
1
From 1,268
unit-banner-imageunit-banner-imageunit-banner-image
PH6 Plan details
PH6 Plan is now sold.
Check out available nearby plans below.