hero-image-0

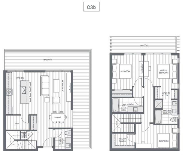
C3B Plan

Cambie + King Edward
Sold
Sold
3
2
From 1,461
unit-banner-imageunit-banner-imageunit-banner-image
C3B Plan details
C3B Plan is now sold.
Check out available nearby plans below.