hero-image-0

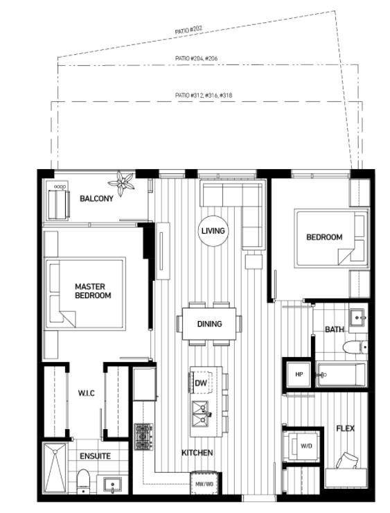
D7 Plan

Avalon 3
Sold
Sold
2
2
1
From 920
unit-banner-imageunit-banner-imageunit-banner-image
D7 Plan details
D7 Plan is now sold.
Check out available nearby plans below.