hero-image-0

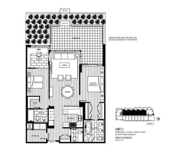
C Plan

By

Cressey

   |   

Arbutus Ridge

Arbutus Ridge
Sold
Sold
2
2
1
From 1,206
unit-banner-imageunit-banner-imageunit-banner-image
C Plan details
C Plan is now sold.
Check out available nearby plans below.