hero-image-0

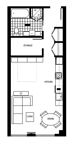
SA1 Plan

By

Anthem

   |   

AltoLife

AltoLife
Sold
Sold
From 504
unit-banner-imageunit-banner-imageunit-banner-image
SA1 Plan details
SA1 Plan is now sold.
Check out available nearby plans below.