hero-image-0

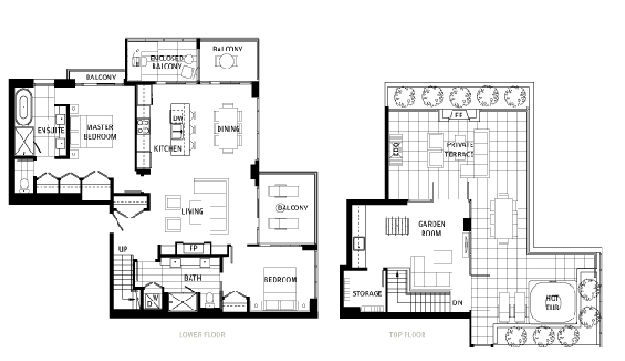
2B PH1 Plan

By

Anthem

   |   

AltoLife

AltoLife
Sold
Sold
2
From 1,589
unit-banner-imageunit-banner-imageunit-banner-image
2B PH1 Plan details
2B PH1 Plan is now sold.
Check out available nearby plans below.