hero-image-0

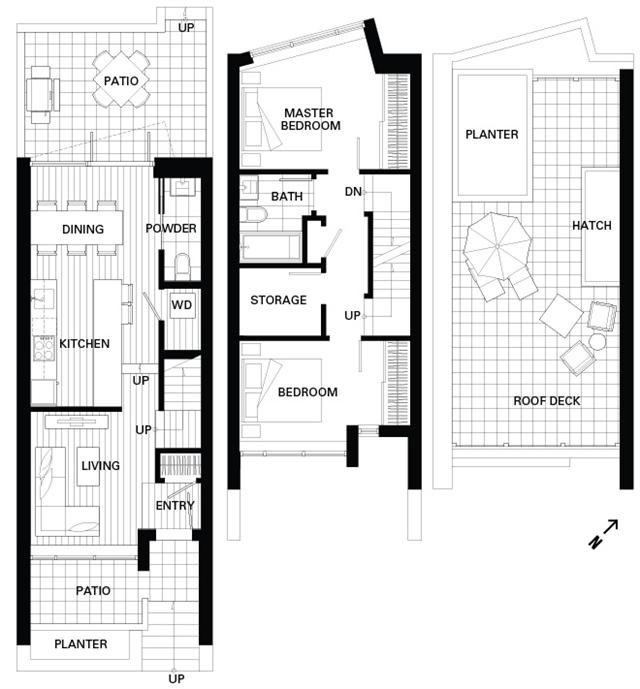
Plan TH-AB

Addition
Sold
Sold
2
1
1
From 1,015
unit-banner-imageunit-banner-imageunit-banner-image
Plan TH-AB details
Plan TH-AB is now sold.
Check out available nearby plans below.