hero-image-0

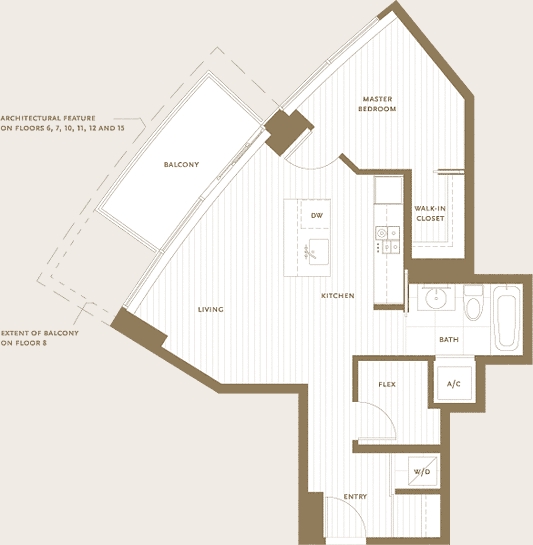
Suite 03 Plan

By

Westbank

   |   

6&Fir

6&Fir
Sold
Sold
1
From 576
unit-banner-imageunit-banner-imageunit-banner-image
Suite 03 Plan details
Suite 03 Plan is now sold.
Check out available nearby plans below.