hero-image-0

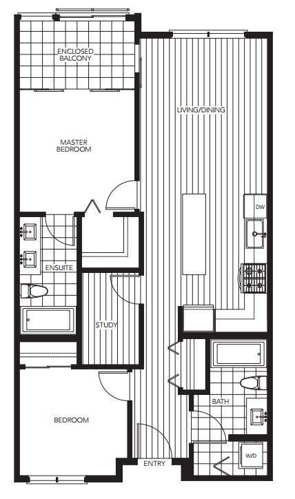
B2 Plan

By

Omicron

   |   

5555 Dunbar

5555 Dunbar
Sold
Sold
2
2
From 908
unit-banner-imageunit-banner-imageunit-banner-image
B2 Plan details
B2 Plan is now sold.
Check out available nearby plans below.