





































































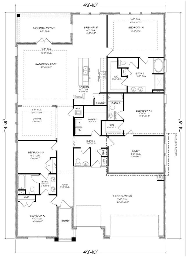
The Camden is one of our floorplans featured in Crane Landing in charming Ocean Springs, Mississippi. The Camden features 4-bedrooms and 3.5-bathrooms in over 2,700 square feet. It also has a 3-car garage as well offering plenty of space. This floor plan is great for multi-generational needs with a separate living, bathroom, and bedroom space sometimes referred to a mother-in-law suite. As you enter the foyer you are greeted with two guest bedrooms that share an ensuite bathroom with a double vanity. Making your way down the hall you will find a large dining room perfect for the whole family. The well-appointed kitchen overlooks the great room and features an island with bar seating, beautiful granite countertops, farmhouse sink and stainless-steel appliances. Enjoy views of the covered porch from the breakfast area just off the kitchen. The primary bedroo...
Stay informed with Livabl updates on new community details and available inventory.