
























































Get additional information including price lists and floor plans.
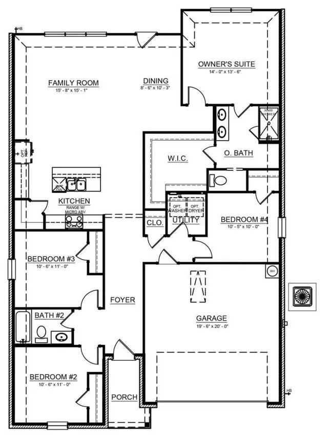
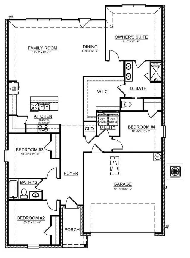
The Knollwood is a delightful one-story home that offers four bedrooms and two bathrooms, catering to both family comfort and flexibility. The dining area, strategically positioned, makes mealtime gatherings and special occasions a breeze. This single-story layout is designed for easy navigation, making it ideal for all family members. The Knollwood boasts a harmonious blend of open spaces and private quarters, offering versatility and convenience. To schedule an appointment, contact rollingridge@cambridgehomes.com
Stay informed with Livabl updates on new community details and available inventory.