









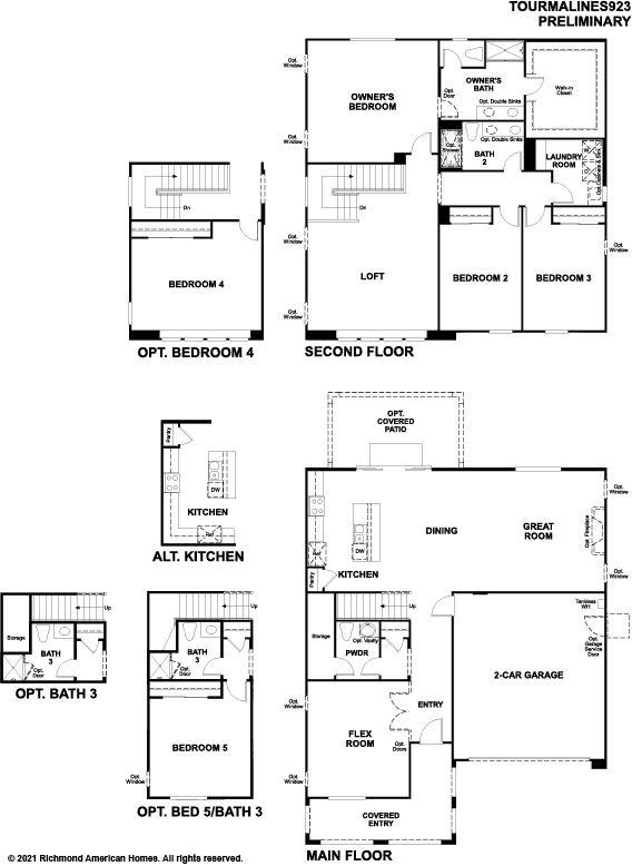
The two-story Tourmaline plan offers abundant opportunities for personalization. The main floor showcases an open layout with a great room, a dining area and a kitchen with a center island. You'll also find a powder room and a versatile flex room that can be optioned as a fifth bedroom. Upstairs, the owner's suite features an immense walk-in closet and a private bath. Two additional bedrooms, a bath, a laundry and a loft that can be optioned as a fourth bedroom complete the second floor.