New Homes for Sale
Articles
Professionals
Log in
Sign up
Photos 23
Videos 0
Map
Interactive floor plan 0
Virtual 0
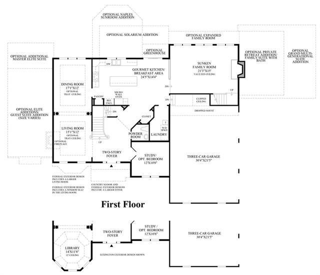
Hopewell Plan
By
Toll Brothers
   |  Â
Summit Estates at Westchester
Community
Available homes
Get updates
Save
Request info
Request info
Community
Available homes
Request info
Get updates
Save
Request info
Summit Estates at Westchester
Get updates
Request info
Sold
Sold
4
3
1
From 3,377
Hopewell Plan details
Address:
Â
Valhalla, NY 10595
Plan type:
Â
Detached Two+ Story
Beds:
Â
4
Full baths:
Â
3
Half baths:
Â
1
SqFt:
Â
From 3,377
Ownership:
Â
Fee simple
Interior size:
Â
From 3,377 SqFt
Lot pricing included:
Â
Yes
Hopewell Plan is now sold.