





























































































Get additional information including price lists and floor plans.
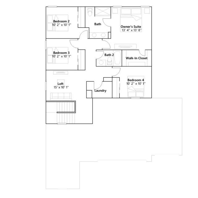
The Great Room, kitchen and dining room are conveniently arranged among an open floorplan on the first level of this two-story home, while a flex room situated off the foyer can work well as a home office or bonus room. A loft and four bedrooms occupy the second level, providing enough space for the whole family.
Stay informed with Livabl updates on new community details and available inventory.