


































































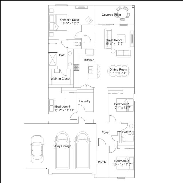
The Great Room, kitchen and dining room are conveniently arranged in an open-concept design at the back of this low-maintenance, single-level home while sliding glass doors lead right to the covered patio for seamless indoor-outdoor dining and entertaining. Three bedrooms complete this home.
Stay informed with Livabl updates on new community details and available inventory.