





























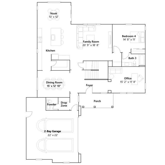
This new two-story home features an expansive layout with room to grow. The first floor is host to an open layout consisting of a kitchen, nook and family room, with a bedroom featuring an en-suite bathroom off the main living area. A convenient office space and formal dining area are located near the entry. Three additional bedrooms can be found upstairs surrounding a versatile loft. The owners suite includes a private bathroom and generous walk-in closet.
Stay informed with Livabl updates on new community details and available inventory.