hero-image-0
hero-image-1

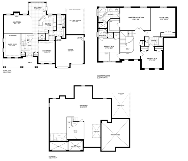
Glen Abbey B Plan

The Estates of Wyndance
Sold
Sold
4
3
From 3,030
unit-banner-imageunit-banner-imageunit-banner-image
Glen Abbey B Plan details
Glen Abbey B Plan is now sold.
Check out available nearby plans below.