hero-image-0
hero-image-1

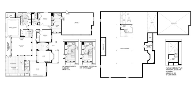
Chesdin w/ Loft B Plan

The Estates of Wyndance
Sold
Sold
3
2
From 3,794
unit-banner-imageunit-banner-imageunit-banner-image
Chesdin w/ Loft B Plan details
Chesdin w/ Loft B Plan is now sold.
Check out available nearby plans below.