














































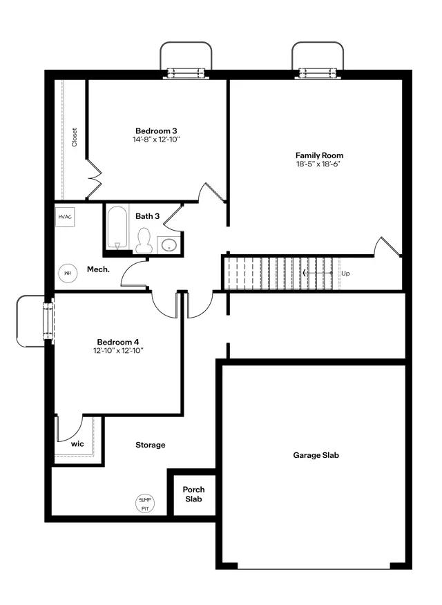
Your new home awaits you in the Waterford Pointe community located in Urbandale, IA. The Harmony floor plan is an open concept ranch-style home that features 4 bedrooms, 3.5 bathrooms, 3 car garage, and 2,462 sq. ft. of finished living space. What sets this single-family home apart from the rest, is the junior primary bedroom that is located on the main level. As you enter your new home from the front door and walk through the foyer, you will see this spacious secondary bedroom is equipped with its own en-suite bath and a large walk-in closet. Continuing through the foyer to the heart of the home, you will pass the laundry room and guest bathroom to arrive at the heart of the home. The open flow design of the living room, dining area, and kitchen will make everyday living convenient and functional. The living room boasts an electric fireplace and large window...
Stay informed with Livabl updates on new community details and available inventory.