









































Get additional information including price lists and floor plans.

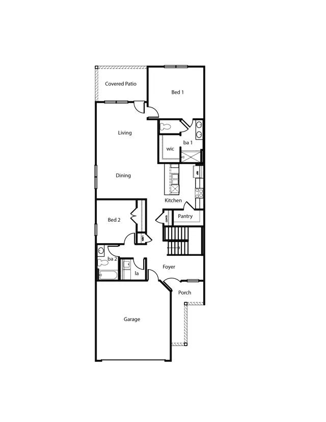
Your new home awaits you in the Mallard Prairie Twinhomes community located in Urbandale, IA. The Olsen floor plan is a ranch style home that features 3 bedrooms, 3 bathrooms and 1,410 sq. ft. of living space with a finished basement. As you enter your new home from the front door and walk through the foyer you will be greeted with a spacious entryway that overlooks the stairs to the finished lower level. Across from the stairs you will find the conveniently located laundry room, guest bathroom, and a generously sized guest bedroom. Continuing down the foyer, you will pass two closets for coats and linens, and reach the heart of the home. Here, you will discover the beautiful kitchen that overlooks the large dining area and living room. The kitchen features white cabinetry, quartz countertops, stainless steel appliances, and additional seating at the atta...
Stay informed with Livabl updates on new community details and available inventory.