hero-image-0
55+ Active Adult The Woodlands...
Sold
Sold
3
3
From 3,437
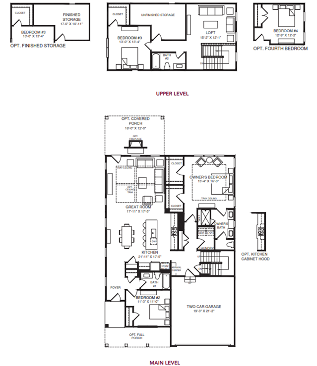
Clarkson Plan details
Clarkson Plan is now sold.
Check out available nearby plans below.