New Homes for Sale
Articles
Professionals
Log in
Sign up
Photos 26
Videos 0
Map
Interactive floor plan 0
Virtual 0
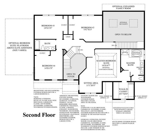
Columbia II Plan
By
Toll Brothers
   |  Â
Weyhill Estates at Upper Saucon
Community
Available homes
Get updates
Save
Request info
Request info
Community
Available homes
Request info
Get updates
Save
Request info
Weyhill Estates at Upper Sauco...
Get updates
Request info
Sold
Sold
4
2
1
From 3,124
Columbia II Plan details
Address:
Â
Upper Saucon Township, PA 18034
Plan type:
Â
Detached Two+ Story
Beds:
Â
4
Full baths:
Â
2
Half baths:
Â
1
SqFt:
Â
From 3,124
Ownership:
Â
Fee simple
Interior size:
Â
From 3,124 SqFt
Lot pricing included:
Â
Yes
Columbia II Plan is now sold.