
















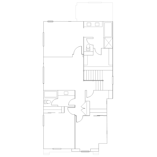
The first level of this two-story home is host to a spacious open floorplan shared between the kitchen, dining room and Great Room. A secondary bedroom is ideal as a space for overnight guests or a home office, with a full bathroom across the hall. Upstairs, a versatile loft provides additional shared living space. Three more bedrooms surround the loft, including the expansive owners suite featuring a spa-inspired bathroom and a walk-in closet.