





































































Get additional information including price lists and floor plans.
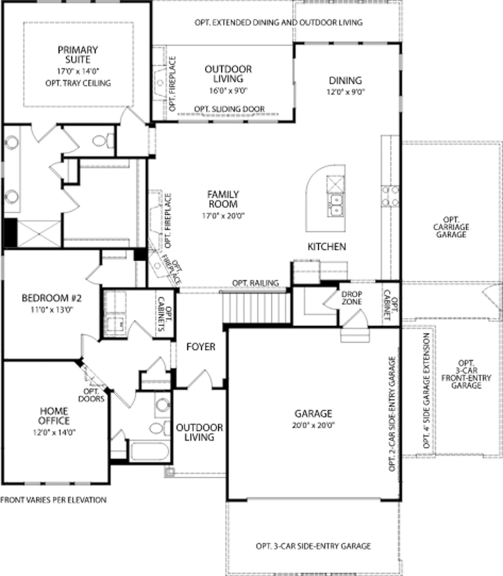
If you're looking for convenient living on one level, discover Drees' Hialeah plan today. This home showcases an open arrangement of the large family room, spectacular kitchen with generous island, and a spacious dining area. You'll expand your living with a covered outdoor area with optional fireplace. Relaxing is easy in your secluded primary suite which includes a luxurious bath and large walk-in closet. For quiet times, a formal study accessed from the main foyer is a perfect retreat. Make this home your own by choosing from a variety of popular options, such as a unique pocket office off the kitchen, a guest suite in lieu of a formal study, and a finished lower level rec room with den and entertainment zone.
Stay informed with Livabl updates on new community details and available inventory.