
















Get additional information including price lists and floor plans.
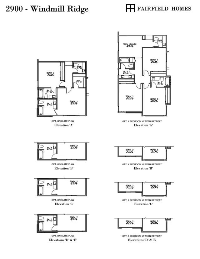
This contemporary Mesquite home boasts 2,923 square feet of living space and an open floor plan, creating a seamless flow between the main living areas. The home features 3-4 bedrooms, 2.5-3.5 bathrooms, a spacious 3 car garage, high-end finishes, and modern design elements, providing a luxurious living experience. With spacious bedrooms and versatile living areas, this home is perfect for those seeking a modern and comfortable, luxury living space.
Stay informed with Livabl updates on new community details and available inventory.