


















































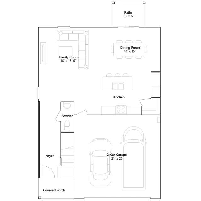
The first floor of this new two-story home is host to an open-concept floorplan shared between the kitchen, dining room and family room. A nearby patio is ready for outdoor entertainment and leisure. On the second floor, four bedrooms surround a versatile loft, including the luxurious owners suite with a full-sized bathroom and walk-in closet.
Stay informed with Livabl updates on new community details and available inventory.